Quadrilocale in vendita

Baricella, Via Savena Vecchia - San Gabriele
€ 220.000
4 locali 4 locali
175 Mq 175 Mq
1 bagno 1 bagno

Quadrilocale in vendita

Baricella, Via Savena Vecchia - San Gabriele

Descrizione annuncio

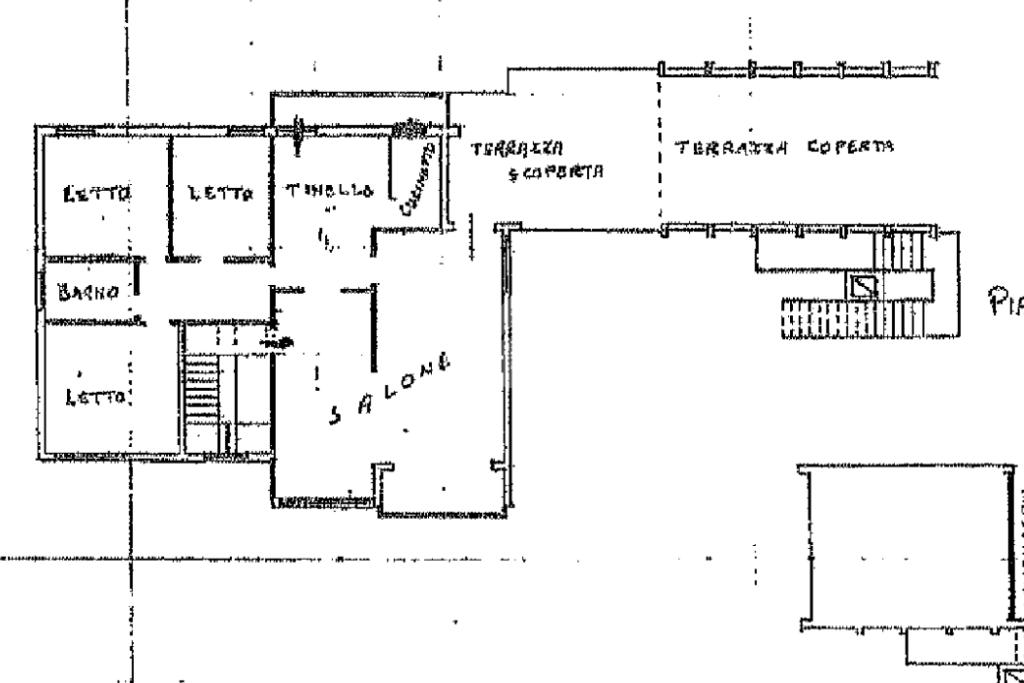
Nel tranquillo contesto di San Gabriele, nel comune di Baricella, è disponibile un appartamento situato al primo piano di un edificio bifamigliare. L'immobile offre spazi generosi, ideali per chi desidera personalizzare la propria abitazione grazie alla possibilità di ristrutturazione. La proprietà comprende un salone doppio a cui si accede alla zona pranzo, tre camere da letto e un bagno. In balcone e l'ampia terrazza offrono spazi esterni perfetti per momenti di relax o convivialità. L'appartamento è dotato di un'autorimessa, garantendo comodità e sicurezza per il parcheggio. Completa la proprietà un giardino, ideale per chi ama il verde e desidera uno spazio all'aperto. Questa soluzione rappresenta un'opportunità per chi cerca una casa da personalizzare in una zona tranquilla e ben collegata.

Gestione delle permute e dei finanziamenti.

Mostra tutto

Nelle vicinanze

Trasporto pubblico Trasporto pubblico
San Gabriele Borgo
San Gabriele Borgo
70 m
San Gabriele Chiesa
San Gabriele Chiesa
610 m
Mostra tutto

Caratteristiche

Rif.:
61152479
Piano:
1 di 2 (ultimo Piano)
Box:
1
Balconi:
1
Terrazzi:
1
Camere da letto:
3
Mostra tutto
Prezzo Prezzo
€ 220.000
Rata mutuo Rata mutuo
€ 1.049 / mese
Spese annue Spese annue
€ 0
Proponi il tuo prezzoProponi il tuo prezzo

Classe Energetica

G
G
G
G
G
G
G
G
G
EP globale non rinnovabile:
408.26 kW h/m² anno
EP globale rinnovabile:
10.62 kW h/m² anno
EP invernale del fabbricato:
EP estiva del fabbricato:
Anno di costruzione:
1967
Riscaldamento:
Autonomo
Tipo impianto:
A radiatori
Tipo alimentazione:
Metano

Ti interessa visionare l'immobile?

Fissa un appuntamento  Fissa un appuntamento

Richiedi informazioni

Clicca su Leggi per aprire l'informativa
* Questi campi sono obbligatori

Calcola il tuo mutuo

Semplice e senza impegno
Anticipo

( % )
Mutuo

( % )

pochi semplici passi

inserisci i tuoi dati
Questionario completato
Grazie per aver richiesto un appuntamento senza impegno con un nostro Consulente del Credito e Assicurativo.

Hai inserito correttamente tutti i dati necessari e a breve riceverai una e-mail con un link da convalidare per inviare i tuoi dati.
Affiliato
La Fenice Srl
Via Garibaldi, 13/G 40061 Minerbio (BO)

Il nostro staff


  • Salvatore Fiato
    Affiliato

  • Marzia Cavallo
    Collaboratrice

  • Manuela De Marchi
    Coordinatrice

  • Samuel Amadei
    Collaboratore
Via Garibaldi, 13/G 40061 Minerbio (BO)
Zona: Minerbio-Ca'de Fabbri-Baricella-San Gabriele-Mondonuovo
Mostra su mappa
Orari: Dal lunedì al venerdì ore 9:00 / 13:00 e 15:00 / 19:30 - Sabato fino alle 12:30. Si consiglia l'appuntamento.
Affiliato
La Fenice Srl
Via Garibaldi, 13/G 40061 Minerbio (BO)

2026 Tecnocasa Franchising S.p.A. - P. IVA 08365160152 - Via Monte Bianco 60/A 20089 Rozzano (MI). Ogni agenzia ha un proprio titolare ed è autonoma. Privacy policy | Policy utilizzo | Cookie policy